Наличие:
Есть в наличииОписание
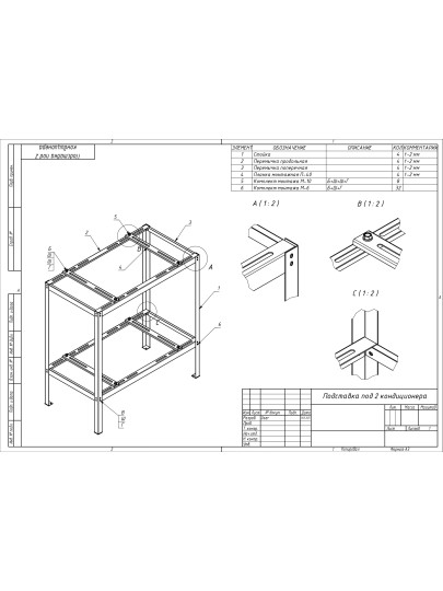
Разборная подставка для кондиционеров размером 950х500х1000 мм из стали толщиной 2 мм, окрашенная в белый цвет. Эта подставка предназначена для установки наружного блока кондиционера на ровной поверхности. Благодаря своей универсальной конструкции с регулируемыми установочными планками, она подходит для большинства кондиционеров. Изготовлена из качественной стали с порошковым покрытием, которое наносится на специализированном оборудовании с трёхступенчатой подготовкой поверхности и конверсионным покрытием, что гарантирует равномерное покрытие всей конструкции.• Материал — сталь по ГОСТ 16523-97 толщиной 2,0 мм
• Окраска — порошковая, белого цвета
• Конструкция — разборная
• Габариты в собранном виде: 950х500х1000мм
Подставка под 2 внешних блока кондиционера далее по тексту (подставка), это набор гнутых профилей различного сечения и толщины с порошковым окрасом в температурной камере полимеризации. Профиля изготовлены методом холодной деформации из листового проката по ГОСТ 16523 Ст3сп5. Профиля скрепляются между собой винтами поставляемыми в комплекте в соответствии со схемой. Протяжку резьбовых соединений выполнить после предварительной сборки, (предварительную сборку выполнить от руки наживив гайки на винты) преждевременное затягивание гаек может привести к затрудненному совмещению отверстий последующих соединений. Гайки с нейлоновой вставкой (самоконтрящаяся) предназначены для разовой затяжки, после скручивания нейлоновая вставка может потерять свои свойства и не выполнять удерживающую функцию. В свою очередь это может привести к самопроизвольному раскручиванию гаек от вибрации кондиционера и как следствие привести к поломке самого кондиционера. После окончательной сборки подставку необходимо поставить на место постоянной установки, с твердым покрытием, выровнять плоскость установки по уровню и закрепить ее к основанию соответствующим основанию крепежом через специальные отверстия в ножках поз.1 Рис.2 после чего произвести монтаж кондиционера. Монтаж на не закрепленную подставку может привести к опрокидыванию конструкции из-за смещения центра масс и вывести из строя кондиционер. Подставка предназначена для монтажа наружного блока кондиционера максимальной массой 80кг. Прочее применение не регламентировано.
Производитель не несет ответственности за выход из строя оборудования, полученные травмы и увечья в случае нарушения техники безопасности, правил монтажа и эксплуатации.
10160р.
Зарегистрируйся, оставляй отзывы о товаре, зарабатывай бонусы!
Отзывов: 0
Нет отзывов о данном товаре.

